5630 Seminole Valley Trail NECedar Rapids, IA 52411

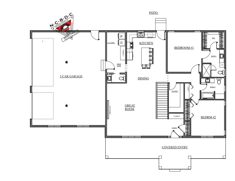
Experience the quality and craftsmanship of this stunning new construction ranch by TruGrade Homes, ideally situated in a highly desirable Ushers Ridge Development near the Cedar River with beautiful views, and is outside of the flood plain. Currently in the drywall phase with an estimated completion timeline of approximately 60–90 days, this home offers the rare opportunity to secure a thoughtfully designed property before final finishes are complete. The main level features approximately 1,800 square feet of well-planned living space with 9-foot ceilings and abundant natural light from large windows throughout. A welcoming 8-foot-deep covered front porch creates the perfect setting for relaxing mornings or evening gatherings. Inside, the entry includes generous closet space along with custom built-in cubbies and bench seating for everyday convenience. The open-concept living area centers around a custom fireplace feature wall and flows seamlessly into the kitchen and dining area. The kitchen is designed for both function and entertaining, featuring quartz countertops, custom cabinetry, an oversized island- which can double as a dining space with seating for six, and a spacious walk-in pantry with additional cabinetry and counter space for storage and prep. Two bedrooms are located on the main level, including a spacious primary suite with a private bath thoughtfully designed with accessibility in mind. The bedroom and bathroom layout incorporates ADA-friendly design principles, and additional structural backing has been installed within walls throughout key areas of the home to allow for future installation of grab bars, safety supports, or other accessibility features if desired. Composite flooring throughout the main level offers the appearance of hardwood with enhanced durability and easy maintenance. The fully finished lower level expands the home to over 3,200 total finished square feet and includes 9' ceilings which add immensely to the spacious and open feel of the home, as well as two additional conforming bedrooms, a full bathroom, and a large recreation area. A custom wet bar with upgraded cabinetry, Live Edge floating shelving artfully created and installed by a true craftsman & woodworker, stone finishes, and walnut trim. This space provides an ideal spot for entertaining, while the flexible bonus areas can accommodate a media room, office, fitness space, or hobby use. The oversized 3+ stall attached garage (approximately 36’ x 28’) features high ceilings, multiple electrical circuits, EV charging pre-wire, insulated doors, floor drains, and is constructed with insulation ready for future heating and cooling—ideal for projects, storage, or vehicle space. Directly off the garage is a true drop/zone & mudroom dreams are made of, combined with laundry area- and offering a half bath with pocket door- this space is spacious and genuinely workable for everyday life. Energy efficiency and structural quality are evident throughout, including an ICF foundation system (approximate R-50 equivalent), dense-pack exterior insulation, R-49 attic insulation, on-demand water heater with recirculation, and a high-efficiency heat pump with gas backup. Additional features include active radon mitigation, sound-control insulation in key interior spaces, and reinforcement within walls for future accessibility enhancements. Situated on an approximately 0.45-acre lot with convenient access to major corridors and local amenities, this property offers a combination of location, design, and construction quality that is increasingly difficult to find. Situated in Ushers Ridge Development (HOA fee is only $200/YEAR). Inquire with agent for additional information.
| 6 days ago | Status changed to Active | |
| 6 days ago | Listing updated with changes from the MLS® | |
| a week ago | Listing first seen on site |
Listing courtesy of Heather Aswegan of Keller Williams Legacy Group.
Last checked 2026-03-07 12:29 AM CST.
Did you know? You can invite friends and family to your search. They can join your search, rate and discuss listings with you.